Sanierung / Umbau eines denkmalgeschütztes Reihenmittelhaus in Leipzig - Gohlis

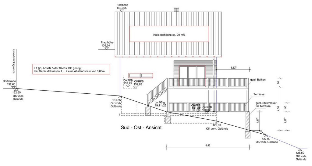
Anbau einer Balkonanlage an vorhandenes Einfamilienwohnhaus

Um- u. Ausbau eines Dachgeschosses

vom Dachboden zum Wohntraum

 

in Leipzig-Gohlis,

Wiederitzscher Straße 6

 

Baubeginn Herbst 2017

Dachgeschoss Um - und Ausbau

Umbau und Sanierung einer vorhandenen Wohnung und Ausbau einer zweiten Wohnung im Dachgeschoss

 

Leipzig-Gohlis,

Wiederitzscher Straße 13

 

Der Umbau wurde 2016 realisiert.

"Unterer Bahnhof " in Grimma

 

vom Bahnhof zum Wohngebäude

 

  • Umplanung eines denkmalgeschützten Gebäudes zu einem Wohngebäude mit 9 Wohneinheiten
  • Sanierung / Modernisierung
  • Errichtung von Balkonanlagen
  • 2 zusätzliche Zwerchgiebel
  • Nutzungsänderung



Entwurfsplanung / Baugesuch 2012

Sanierung eines Mehrfamilienwohnhauses in Jena

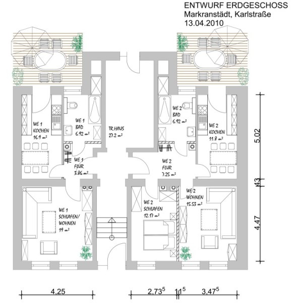
Sanierung eines Mehrfamilienwohnhauses in Markranstädt

Aktuelles

Sie haben Fragen?

Nehmen Sie einfach Kontakt mit uns auf.

 

Telefon

034206 72919

Fax

034206 75646

Mobil

0163/6242364

 

E-Mail

kremer-thomas@t-online.de